241 - 249 Timor Street, Warrnambool, Vic, 3280.
A Mixed 3 Tenant commercial Investment Property with an extra vacant 700sqm approx. ripe for development.
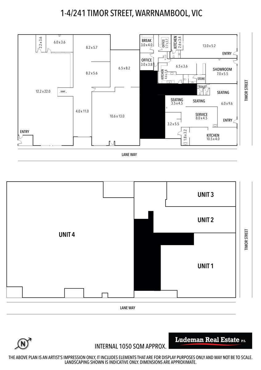
* 1100 sqm approx. in a prominent CBD Location
* Three secure tenants with long term leases
* Mixed tenancy of Pizzeria , Florist and architect
* Well fitted out commercial shops
* 700sqm approx. of vacant warehouse, Loading dock and old office space.
* subsidiary tenants on monthly tenancies
With an expanding Warrnambool population commercial sector and limited sites to lease and buy within the CBD this property offers an investment return plus the opportunity to develop a site for your own business or redevelop to maximize the asset.
Contact agent to get specific details.























